老家有地,心里不慌!这5款三层别墅才是漂亮又有内涵
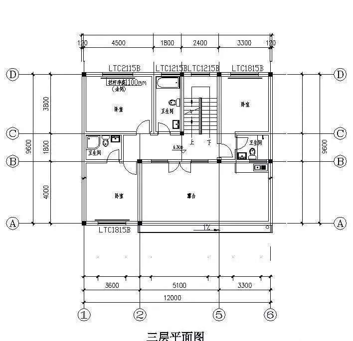
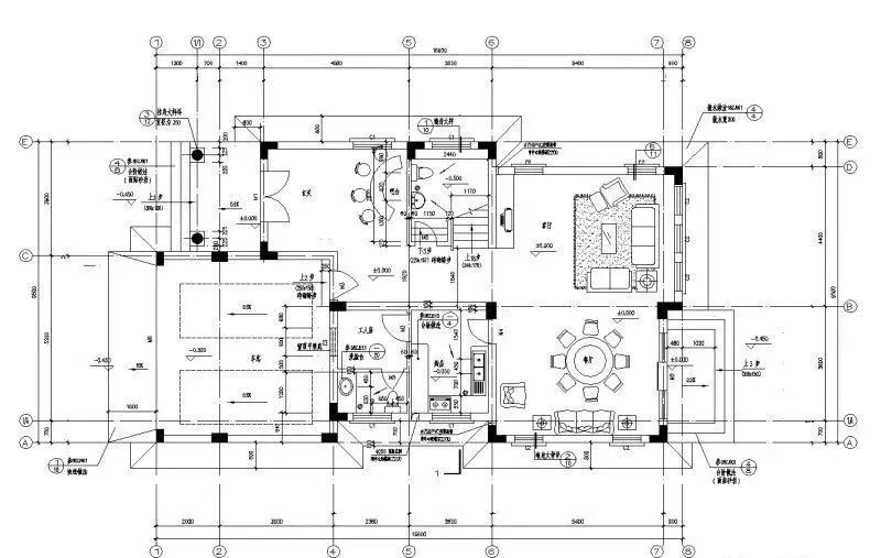
现在农村里家家户户基本上都在建新房,但是建造的水平真的是参差不齐,有的丑出了新高度,有的却漂亮的一塌糊涂,所以一款好的设计图纸非常重要。今天给大家分享5款三层农村独栋自建别墅施工效果图,款款经济实用,美观大气,来看看有没有你喜欢的户型!

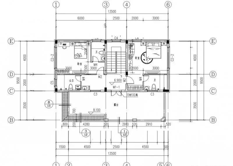
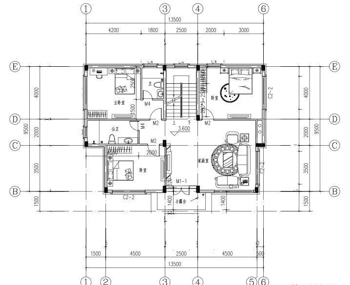
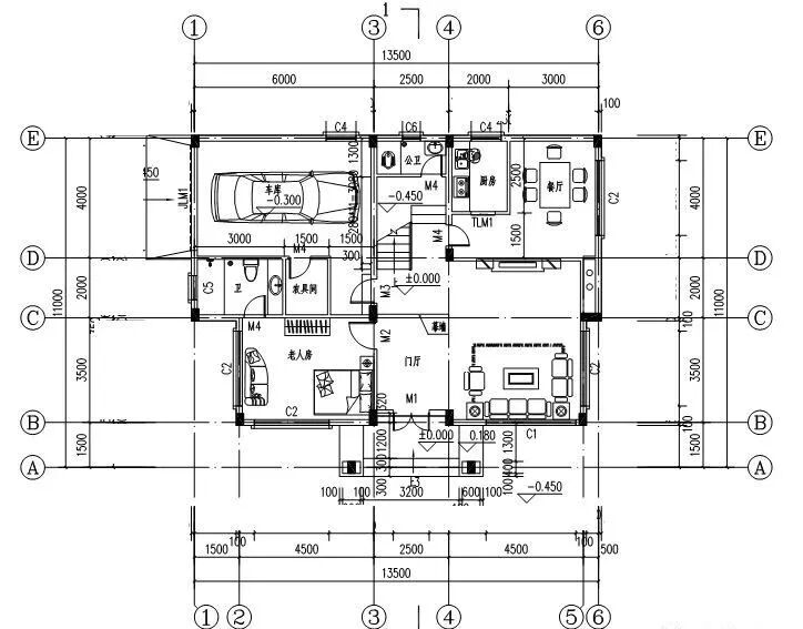
▲图片编号:18051301



开间:13.5米
进深:11米
占地面积:125.15平方米
建筑面积:335.24平方米
建筑高度:13.5米

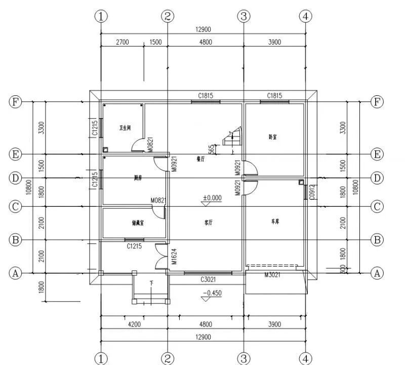
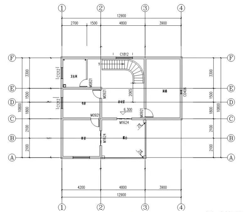
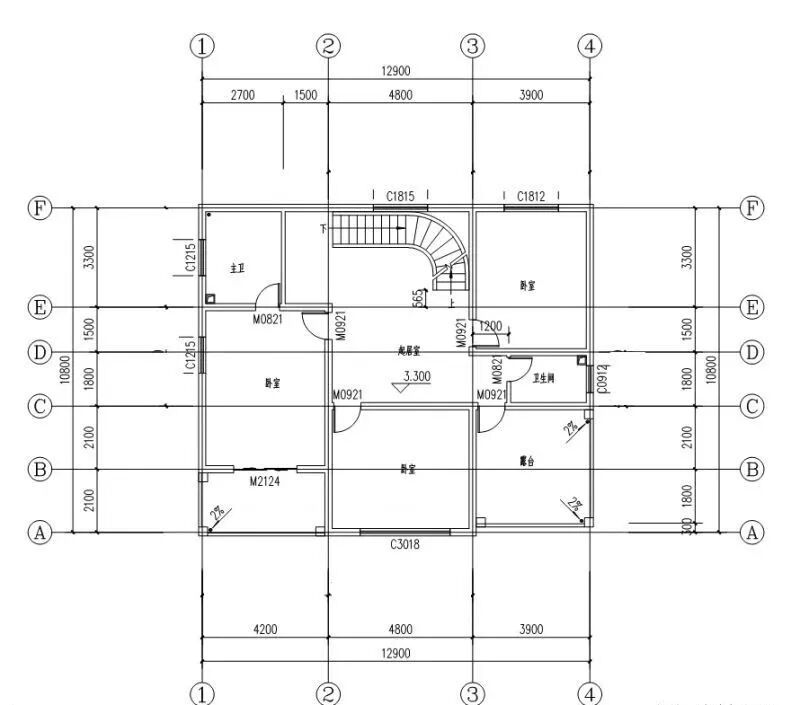
▲图片编号:18042601



开间:12.9米
进深:10.8米
占地面积:139平米
建筑面积:309平米
建筑高度:11.7米

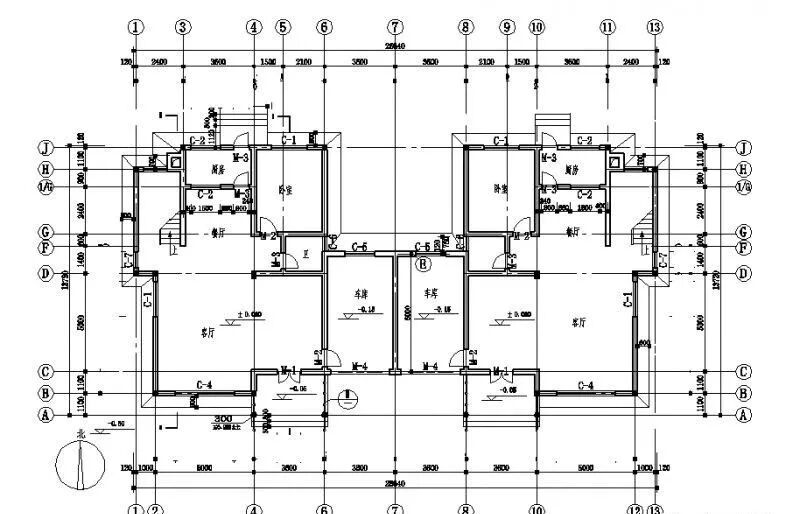
▲图片编号:18060901



开间:13.32米
进深:13.72米
占地面积:143.192平方米
建筑面积:348.676平方米
建筑高度:9.3米

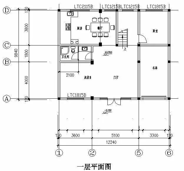
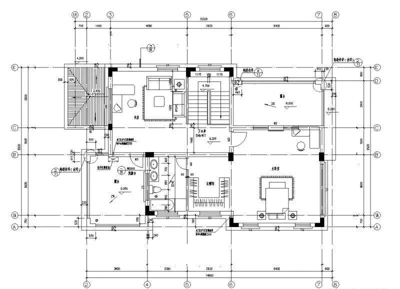
▲图片编号:18040901



开间:12.24米
进深:9.84米
占地面积:120平方米
建筑面积: 327平方米
建筑高度:11.4米

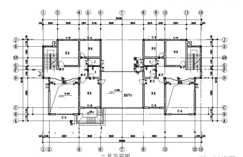
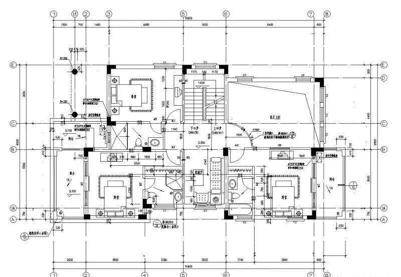
▲图片编号:18071401



开间:9.5米
进深:16.6米
占地面积:135.6平方米
建筑面积:326平方米
建筑高度:11.6米

