只做故乡的骄子!这6款3层别墅是适合农村的经典户型
像现在农村经济条件好起来了,村里的家家户户都在盖新房,而120平左右的户型在农村建房中是最为常见,所以这次为大家推荐的6款三层农村别墅,都是在120平左右,欧式风格非常经典,还都带车库相当实用,要是喜欢可以收藏下来,回村里自己也建一栋。
别墅 1

▲图片编号:18-03090101(11.6x10.8)

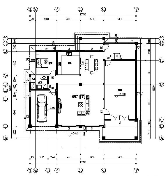
别墅 2

▲图片编号:18040701(7.7x16.6)

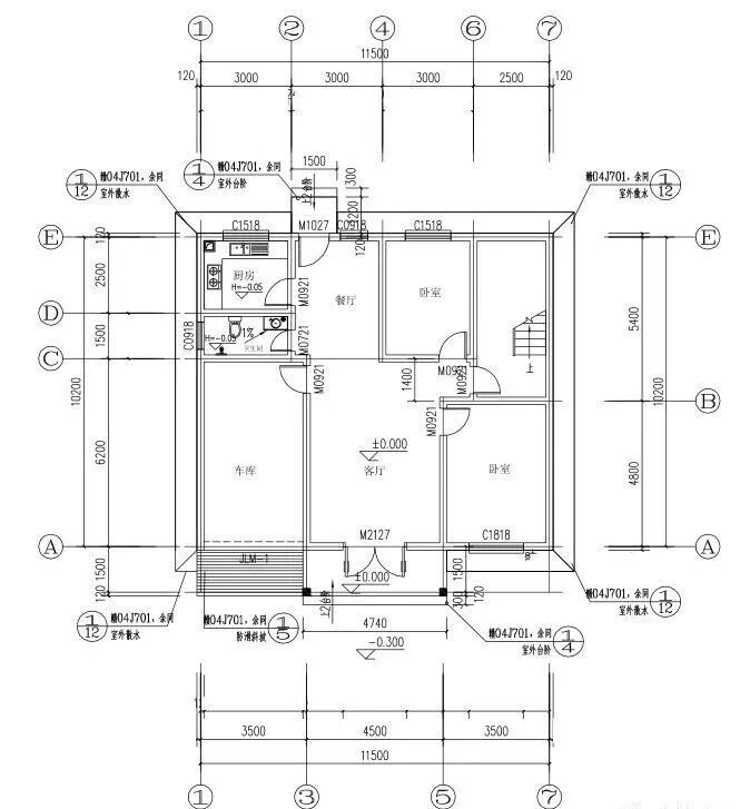
别墅 3

▲图片编号:11110101(14.4x9.44)

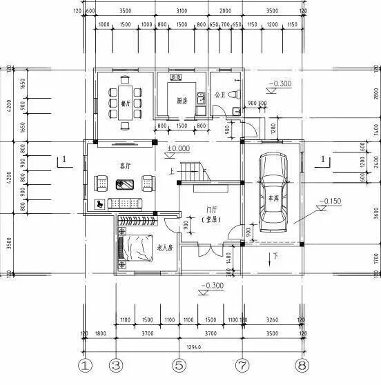
别墅 4

▲图片编号:18022301(12.94x12.14)

别墅 5

▲图片编号:02060101(11.14x11.44)

别墅 6

▲图片编号:18040801(11.5x1.2)


