6款自建别墅奢华大气带地下室,每一栋都足够体面
农村生活美,家家户户盖洋楼住别墅,一栋比一栋好看,有个地下室的农村别墅才够品。今天带来的这6栋带地下室的别墅,二层三层各三栋,栋栋豪华大气,建在村里倍有面子!
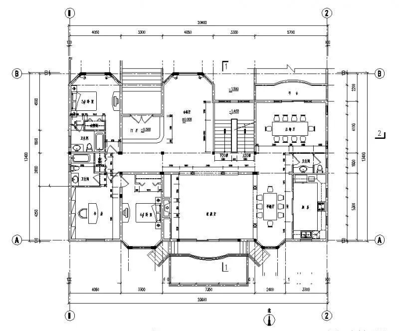
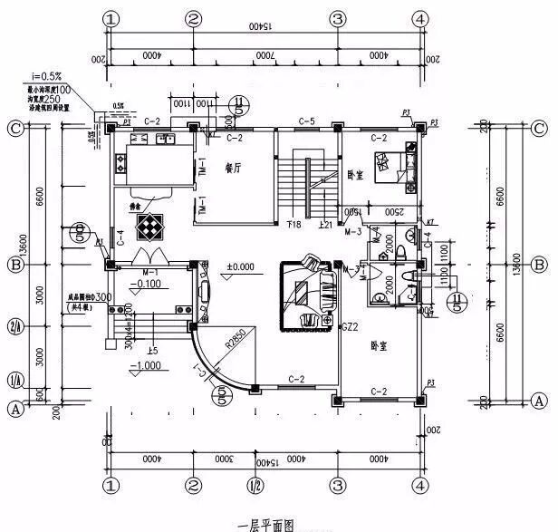
▲图片编号:18081501




开间:20.6米
进深:13.4米
地下室面积:250.78平方米
占地面积:246.97平方米
建筑面积:682.4平方米
建筑高度:9.2米
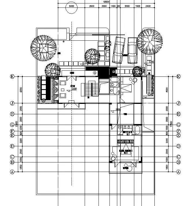
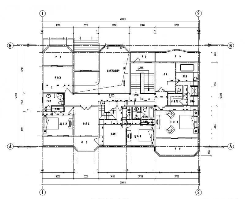
▲图片编号:01110101



开间:18米
进深:17.8米
占地面积:320.4平方米
▲图片编号:01100101



开间:8米
进深:30米
占地面积:240平方米
建筑面积:273.72平方米


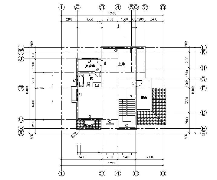
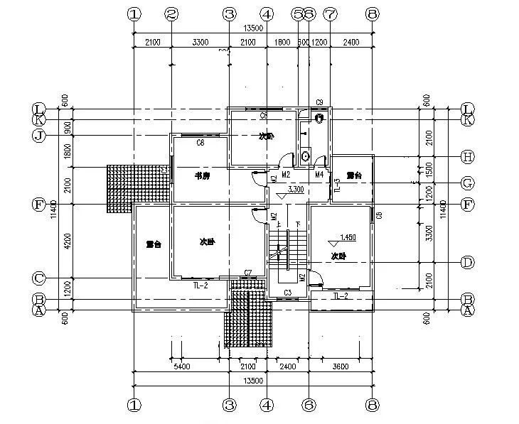
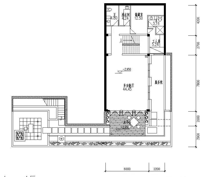
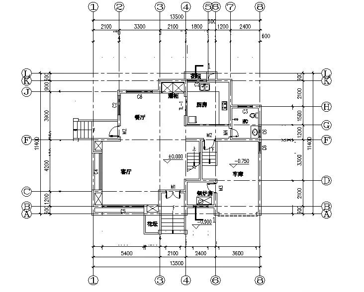
▲图片编号:18072601




开间:13.5米
进深:11.4米
占地面积:140平方米
建筑面积:404.57平方米
建筑高度:11.5米(含屋顶)


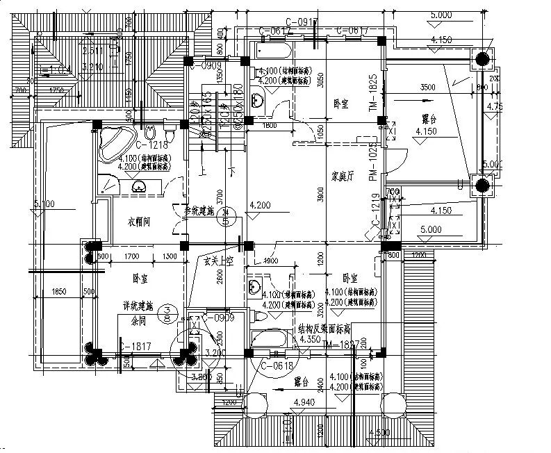
▲图片编号:18051201




开间:17.55米
进深:17.3米
占地面积:189.6平方米
地上总建筑面积:390.6平方米
地下室面积:179.7平方米
总建筑面积:569.7平方米
建筑高度:12.73米
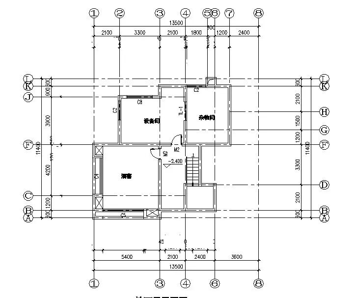
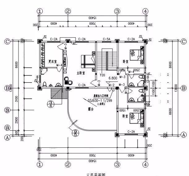
▲图片编号:18060401




开间:15.4米
进深:13.6米
建筑占地面积:178平方米
建筑面积:682.4平方米
建筑高度:12.37m(含屋顶)
点我咨询留下您的需求,我会第一时间回复您!
点我咨询

