一见钟情!7款复式三层别墅自带高级感,真正的大宅
在别墅的设计与造型中,要说大气,那首选复式的设计毫无疑问是最佳的,因为复式设计会让别墅的整体空间显得十分大气,而且也让通风采光更加有优势。今天推荐的这7款三层复式客厅别墅,经济实用,美观大气,下面我们就一起来看看吧!
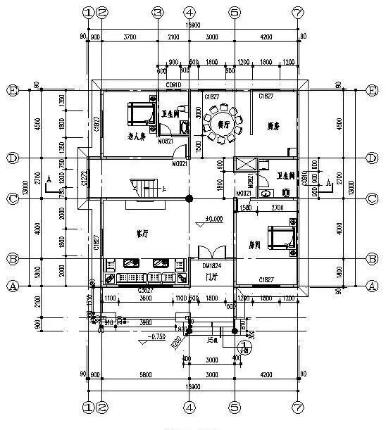
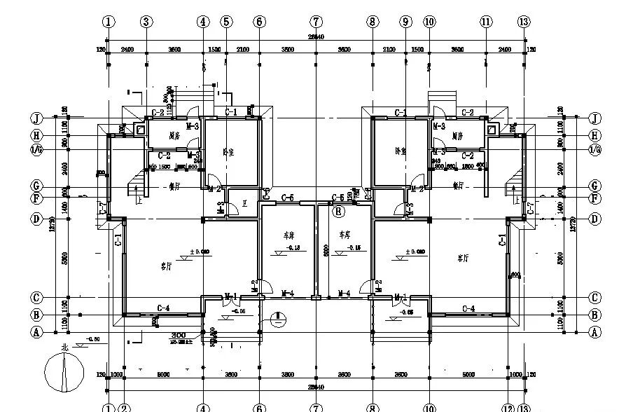
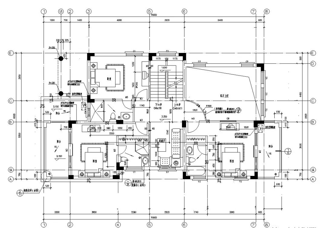
1
▲图片编号:18060701
开间:9.85米
进深:15.1米
占地面积:106.69平方米
建筑面积:287.47平方米
建筑高度:11.7米
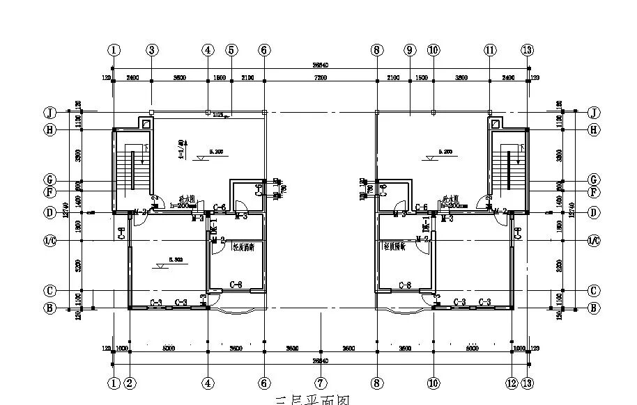
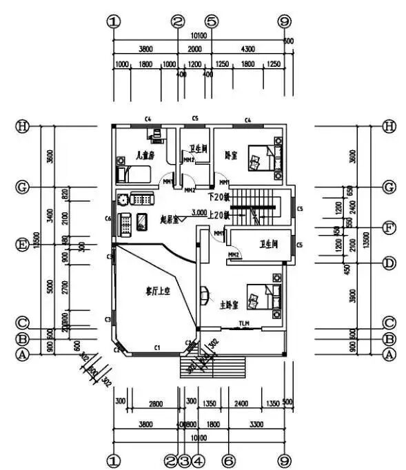
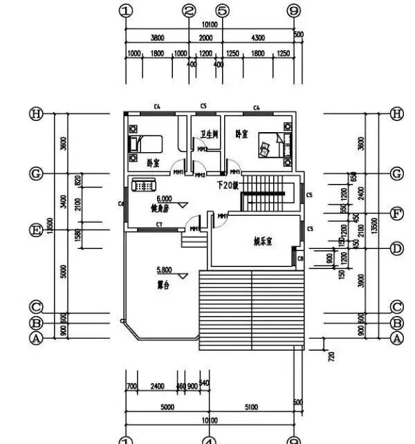
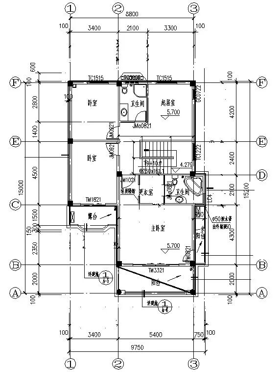
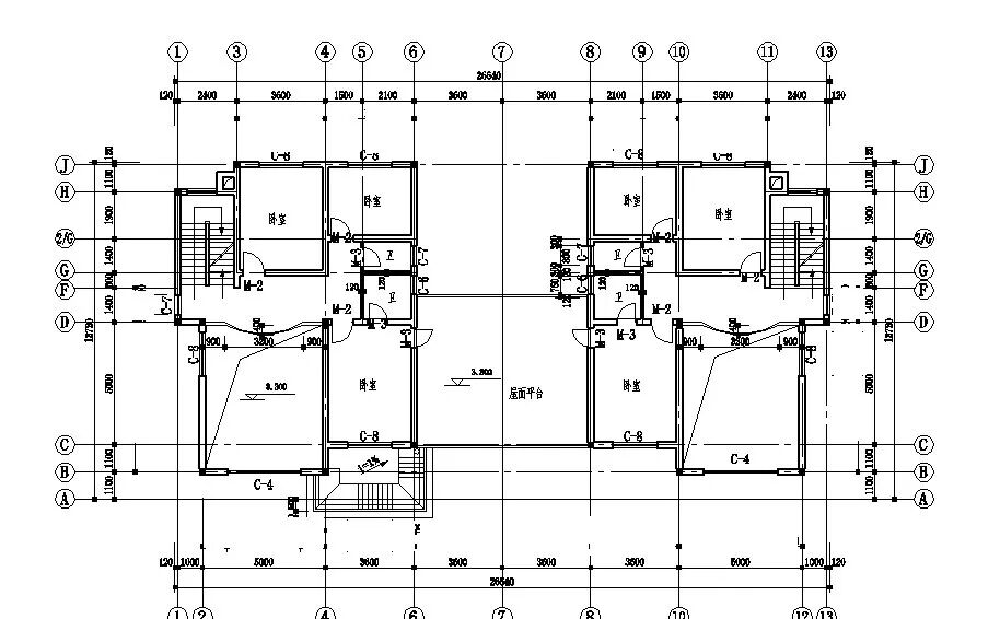
2
开间:10.1米
进深:13.5米
占地面积:129.4平方米
建筑面积:334平方米
建筑高度:11.55米(含屋顶)
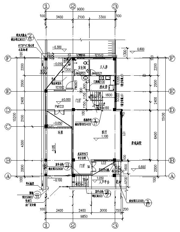
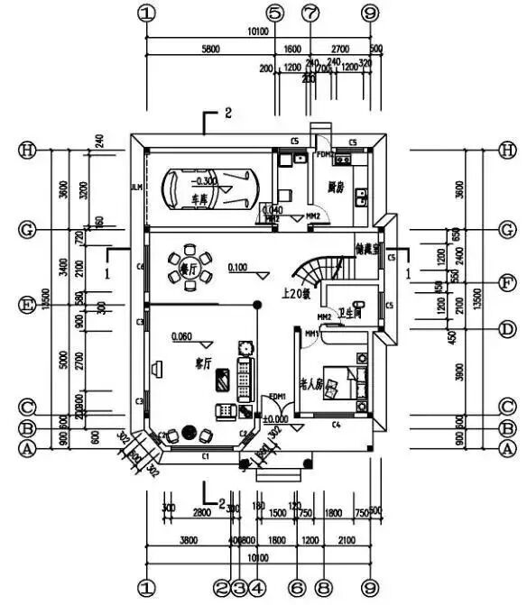
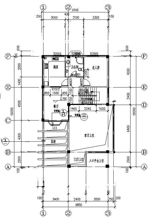
3
▲图片编号:18071401
开间:9.5米
进深:16.6米
占地面积:135.6平方米
建筑面积:326平方米
建筑高度:11.6米(含屋顶)
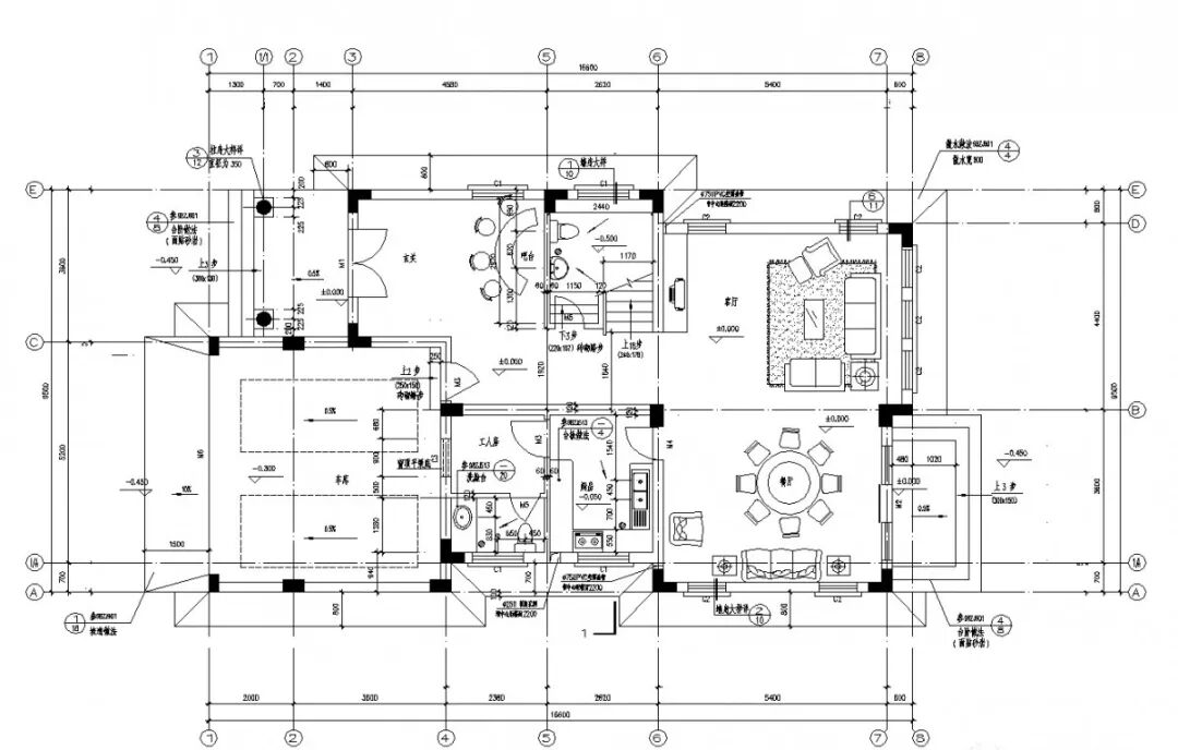
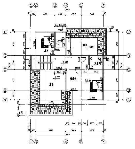
4
▲图片编号:18060901
开间:13.32米
进深:13.72米
占地面积:143.192平方米
建筑面积:348.676平方米
建筑高度:9.3米
5
▲图片编号:18031401
开间:11.7米
进深:13米
建筑面积:356平方米
建筑高度:11.5米(含屋顶)
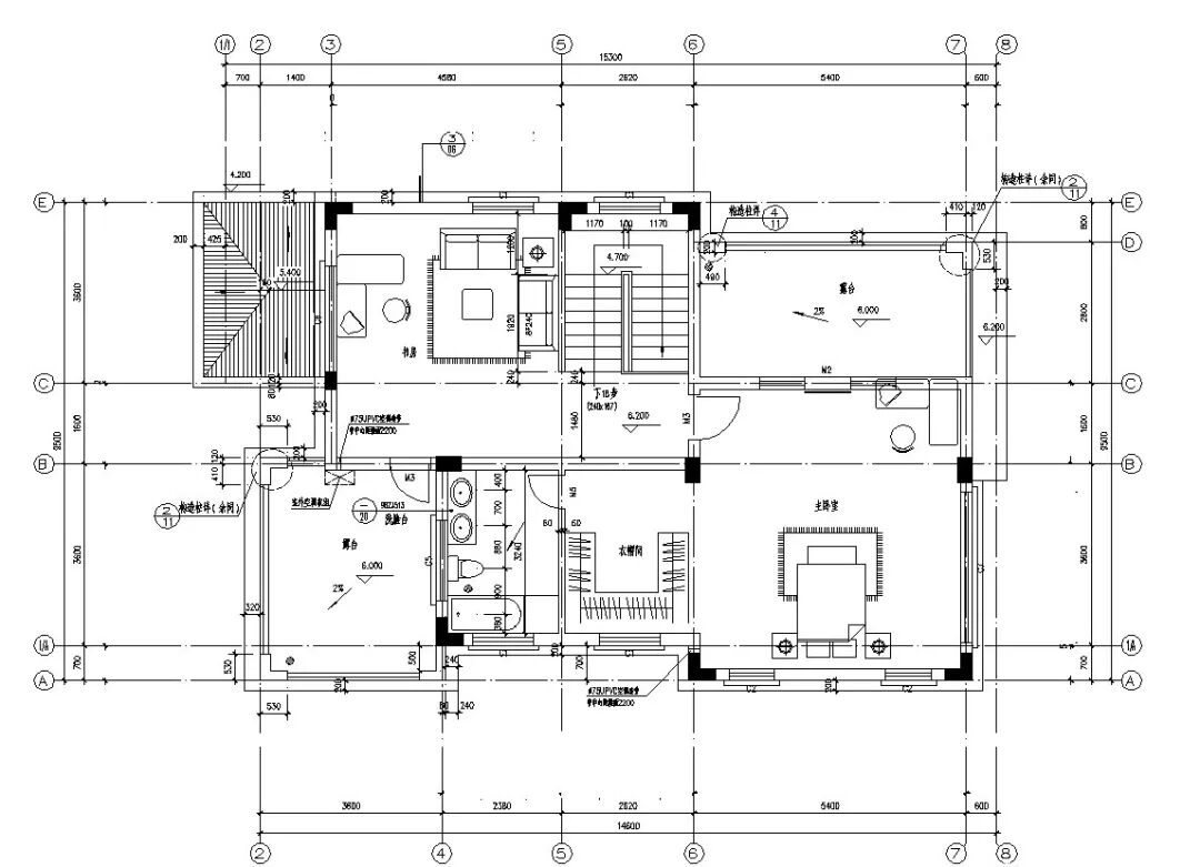
6
▲图片编号:18022401
开间:13.9米
进深:13米
占地面积:180.7平方米
建筑面积:436.1平方米
建筑高度:11.2米
7
▲图片编号:09170102
开间:14.1米
进深:14.4米
占地面积:190.9平方米
建筑面积:558.1平方米
建筑高度:11.1米
扫码了解更多建房资讯

