门窗安装阶段质量控制教程,看完你就懂了(建议收藏)
标准洞口尺寸:门窗洞口完成基础砌筑,并经过第一道防水砂浆修整过后的最终洞口尺寸为门窗洞口标准尺寸。
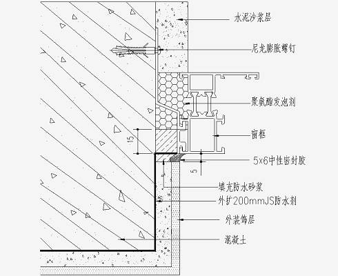
窗框安装前洞口需粉刷一道水泥砂浆,使洞口表面光洁、尺寸规整。外窗窗台板基体表面上应浇成3-5%的向外泛水,其伸入墙体内的部分应略高于外露板面。
砖墙(粘土砖、易通砌块)门窗洞口应预留混凝土埋块。混凝土埋块的间距要求为:洞口上下边埋块间距应为180mm,洞口左右边埋块间距应500mm。

洞口偏差大于10mm并采用水泥砂浆修整后的洞口,门窗固定片与土建结构连接禁止使用射钉固定。应采用尼龙膨胀螺钉固定。


拼樘料上下端口应封堵;
拼樘料应设计加长与结构可靠连接;
组合门(窗)框与拼樘料卡时,应用紧固件双向拧紧,其间距应不大于500mm;距两端间距不大于180mm;拼樘料与门(窗)框间的缝隙应采用嵌缝胶进行密封处理。

主副框安装间隙应严格按主副框设计间隙进行现场质控。安装完成后主副框实际间隙不应小于4mm。
主副框间隙控制应采用专用主副框间隙调整块。不得直接用紧固件紧固控制主副框间隙。

“发泡剂塞缝节点”

“发泡剂塞缝范围”

“发泡剂使用要求”
塞缝间隙为15~25mm。最低施工温度为+5°C
施工前,将填充部位清洁并用水喷湿;
喷射由下向上,喷射量至所填充体积的70%即可;
十分钟表面开始固化,在固化前将溢出发泡剂塞入缝隙处。防止发泡剂外膜破损。
“水砂浆塞缝节点”

“水砂浆塞缝要求”
塞缝砂浆应使用防水砂浆;常规混合比:水泥:砂子:防水剂(重量比)为1:2.5:0.03。具体根据使用情况调整混合比。考虑抗裂可加入聚丙烯纤维-杜拉纤维;
塞缝建议采用专业塞缝队伍;
使用合理塞缝间隙为15~30mm。洞口修正大于50mm的必须采用钢筋网片细石砼做法;

“钢副框安装节点”


“聚合物水泥防水(JS)”
1.基面必须平整、牢固、干净、无明水、无渗漏;凹凸不平及裂缝等缺陷必须填平,渗漏处必须止水;阴阳角应做成圆弧角。
2. 严格按出厂要求的配料比准确计量,配料时先将液料用搅拌器搅拌,在搅拌状态下慢慢加入粉料进行混合搅拌(可加适量水调节黏度,但加水最好在粉料加入前加),要充分搅拌分散,达到均匀无粉团,无沉淀为止。配好的料应在2~3 小时内用完。
3. 按选定的工法,按顺序逐层完成,各层之间的间隔时间以前一层涂膜干固不粘为准。一般施工约需4 小时以上,温度为20℃。如温度低、湿度大、通风条件差则时间要更长些。
基面必须平整、牢固、干净、无明水、无渗漏;
凹凸不平及裂缝等缺陷必须填平,渗漏处必须止水;
阴阳角应做成圆弧角。

“门窗室外粉刷”
外门窗框外侧必须留5mm宽、6mm深的注胶槽口;
注胶槽口预留可采用:贴PVC型分割条做槽口 ,待外粉刷层硬化后,再撤去PVC型分割条。
粉刷面应略超过窗框,其厚度应不影响扇的开启和门窗排水。


“门窗室外侧注胶密封”
外墙注胶时应清洁注胶槽口及基层,并在干燥后施打密封胶;
应采用中性硅酮密封胶注胶密封。严禁在涂料面层上注密封胶;
中性硅酮密注胶注胶时应饱满均匀不间断;

“中空玻璃”
外层密封胶层厚度为5~7mm;
Low-E玻璃镀膜面必须朝向中空层,安装时Low-E玻璃位于室外侧;
钢化玻璃应按规范贴3C标记,双层钢化应在两块钢化玻璃上都加上3C标记;



门窗五金配件的紧固件不得使用抽芯铆钉


“写给窗承包商”
门窗必须安装在经过修整的门窗洞口中;
但洞口偏差超过10mm且采用水泥砂浆修整洞口,固定片紧固不得采用射钉。应采用尼龙膨胀螺钉固定;
拼樘料应设计加长并对端口封堵后,与结构有效固定;
拼樘料与组合框应用紧固件双向紧固,并用密封胶对拼接位置进行密封;
塞缝发泡剂应在固化前塞入缝隙处,不得切割;
严禁在涂料面层上注密封胶!注胶前应对注胶槽口进行清洁;
中空玻璃外层密封胶层厚度为5~7mm;
玻璃垫块的沉重块和限位块应按要求进行摆放;
五金件紧固件应使用不锈钢材质并全数紧固,任何位置不得使用铆钉;

