每款都是实力派 ! 7款一层别墅越看越喜欢
以前农村都是一大家子住,所以建楼房的比较多,二层三层的很常见,而现在农村都喜欢建一层的平房别墅,因为现在的农村人大多数都在城里买了房子,再回农村建个一层的小别墅,里面装修好一点,价格不贵,还很实用。过年过节回来住,或者留着以后退休回来养老。今天给大家推荐7套适合建在农村的平房别墅,第3套比较受欢迎。
户型一
砖红色与灰色搭配,显得沉稳的同时也是不可忽视的存在,内在却实用舒适,低调之中却大有内涵,这就是所谓的大道至简吧

开间:13.2米
进深:12米
占地面积:153.38平方米
建筑面积:187.85平方米
层数:一层带阁楼

户型二
这款别墅外观典雅青瓦灰墙,带着十分耐看的格调;门廊和装饰柱的设置,使雨天也能足不出户进行活动,丰富一家人生活。

开间:13.8米
进深:12米
占地面积:138.15平方米
建筑面积:202.41平方米
层数:一层带阁楼

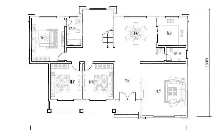
户型三
这款别墅整体设计很有层次感,采光通风良好,窗户造型多样化,在乡村蓝天白云的映照下营造岁月静好的感觉。

开间:14.04米
进深:11.34米
占地面积:144.36平方米
建筑面积:210.69平方米
层数:一层带阁楼

户型四
别墅外形美观大方,内在布局空间奢阔,休闲与社交之间都带有体面,是一款适合空间不讲究,生活很讲究的成功人士。

开间:19.8米
进深:13.8米
占地面积:243.56平方米
建筑面积:346.94平方米
层数:一层

户型五
欧式度假式别墅,无论在哪里都是一道靓丽的风景,自带风情,全景玻璃窗让风景尽收眼底,尽享浪漫生活,惬意人生。

开间:17.4米
进深:12米
占地面积:186.56平方米
建筑面积:235.58平方米
层数:一层带阁楼

户型六
这是一款简约温馨的别墅,干净利落的线条搭配清爽的颜色,整体造型鲜明流畅,对称的设计带有韵律美,让房子极具美感。

开间:16米
进深:9.3米
占地面积:145.38平方米
建筑面积:267.99平方米
层数:一层带阁楼

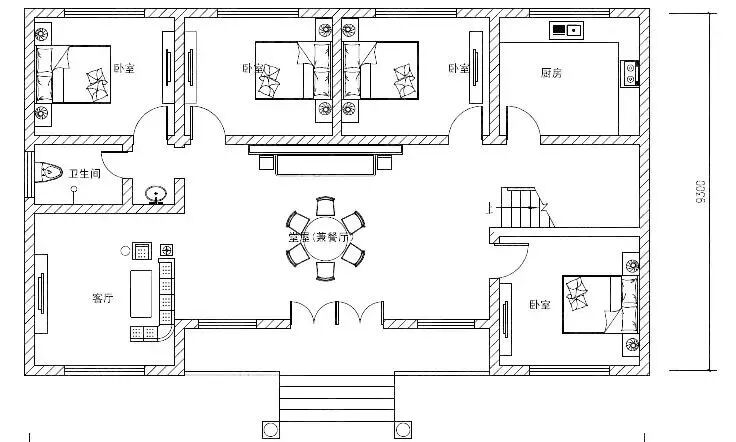
户型七
这款别墅设计小巧雅致,屋顶的设计带有层次感,室内空间没有一点浪费,最适合三代同堂,是一款十分经典的一层户型。

开间:11.1米
进深:9米
占地面积:91.94平方米
建筑面积:104.13平方米
层数:一层


