“善变”的轻钢!8款轻钢户型各领风骚
1
右滑发现更多……
基本信息
建筑面积:226平方米
主体结构:装配式钢结构
一层功能布局:2室2厅1厨1卫,带洗衣房和储藏室;
二层功能布局:4房1厅2卫、衣帽间。


2
右滑发现更多……
基本信息
建筑面积:397.7平方米
主体结构:装配式钢结构
一层功能布局:客厅、餐厅、厨房、卧室、卫生间、车库;
二层功能布局:3间卧室、2间卫生间、衣帽间、露台。


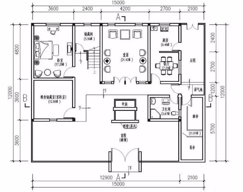
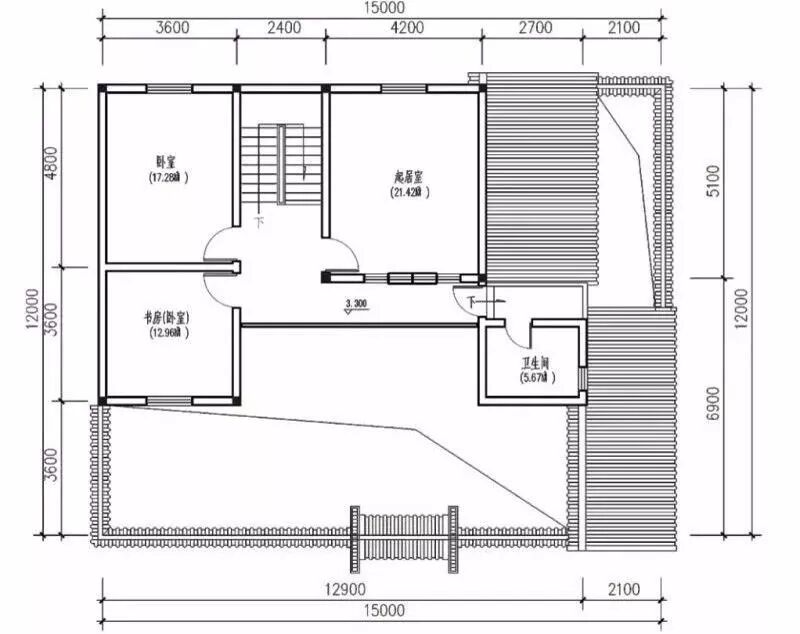
3
右滑发现更多……
基本信息
建筑面积:168平方米
主体结构:装配式钢结构
一层功能布局:前院、中庭、堂屋、饭厅、厨房、卧室、粮食储藏室(客卧室)、储藏间、卫生间、禽畜舍、后院;
二层功能布局:起居室、卧室、书房(卧室)、卫生间。


4
右滑发现更多……
基本信息
建筑面积:197.5平方米
主体结构:装配式钢结构
一层功能布局:堂屋、客厅、餐厅、厨房、老人房、卫生间、储藏室;
二层功能布局:3间卧室、家庭室、书房、卫生间、露台。


5
右滑发现更多……
基本信息
建筑面积:264.2平方米
主体结构:装配式钢结构
一层功能布局:2室2厅1厨2卫,洗衣间;
二层功能布局:3间卧室、卫生间、洗衣间、露台、凉亭。


6
右滑发现更多……
基本信息
建筑面积:206平方米
主体结构:装配式钢结构
一层功能布局:客厅、餐厅、厨房、卧室(带独立卫生间)、公卫;
二层功能布局:3间卧室、3个露台、公卫。


7
右滑发现更多……
基本信息
建筑面积:180平方米
主体结构:装配式钢结构
一层功能布局:客厅、餐厅、厨房、棋牌室、储藏室、卧室、卫生间;
二层功能布局:书房、三间卧室、三间卫生间、一个露台。


8
右滑发现更多……
基本信息
建筑面积:192平方米
主体结构:装配式钢结构
一层功能布局:堂屋、客厅、餐厅、厨房、卧室、卫生间、储藏间;
二层功能布局:书房、四间卧室、两间卫生间、露台和阳台。



扫码了解更多建房行业资讯

























