心动的感觉!10款轻钢自建房满满是惊喜
在农村建房大军中二层和三层的小别墅最受迎,今天整理了10款二层的农村小别墅,有豪华大气的,有简单实用的,有中西结合的,准备建房的可以收藏着,作为参考。
户型一

带车库的复式欧式农村别墅,外观非常的大气精致,功能也很全,卧室多,共有7间卧室。户型开间15.9米,进深11.8米,占地面积187.6平方米。


户型二

简单精致二层农村小别墅,带车库和屋顶露台,舒适大气又实用。开间13.5米,进深11.5米,占地面积145.6平方米,带有堂屋,总设计有6间房。


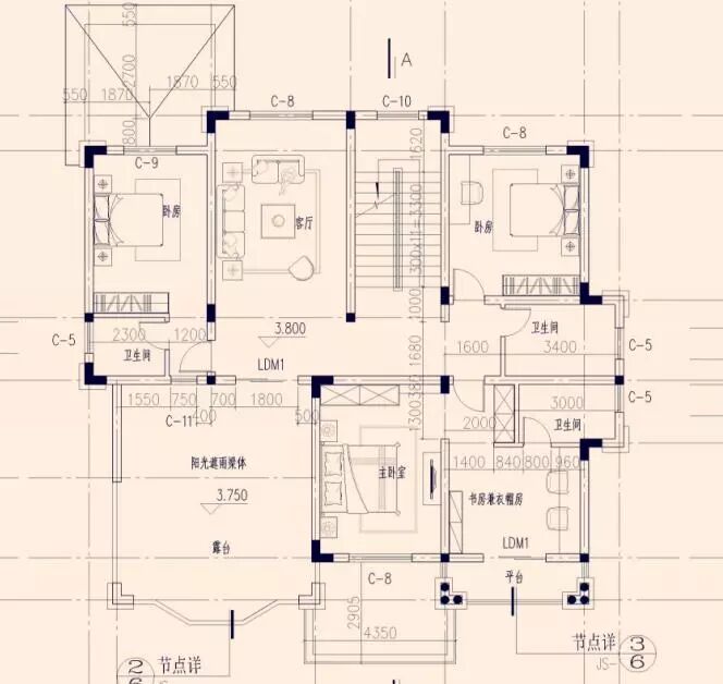
户型三

户型方正的欧式农村别墅,时沿的外观配上大气的真石漆,100多万的别墅效果就出来了。户型开间12.2米,进深12.2米,占地面积137.6平方米,卫生间多,房间都很大。


户型四

温馨大气的一款农村小别墅,进门可以设计堂屋神位,一楼有二间卧室,二楼有4间卧室,衣帽间书房齐全。户型开间12.2米,进深13.5米,占地面积162平方米。


户型五

面积很大,占地有200个平方,户型宽敞舒适,享受型的居所。开间15.2米,进深13.9米,占地204.9平方米,有现代的厨房还有土灶,堂屋、娱乐室、储藏室都有。


户型六

深色的文化石,配上蓝色的屋顶,这样的小别墅建在农村一定很吸引眼球。户型面宽13.3米,进深11.5米,占地面积167平方米。一层设计有堂屋,卧室和卫生间都有2间。


户型七

二层农村豪宅,欧式构件把整个别墅外观装饰的非常精美,在农村建得起这样一套豪宅的,在农村一定是位人物。这款户型面宽16.2米,进深10.8米,占地面积171.9平方米。带堂屋和旋转楼梯,土灶和娱乐室齐全。


户型八

小面积的一款二层农村小别墅,面宽12.1米,进深10.3米,占地面积122.5平方米,带有堂屋,造价也不贵很适合农村建的一款经济适用的小别墅。


户型九

带车库的一款二层小别墅,面宽14.5米,进深10米,占地139.7平方米,堂屋、客厅、2间卧室;二层健身房、书房、衣帽间齐全。


户型十

面积比较大的农村别墅,开间16.8米,进深12.3米,占地面积191.8平方米,卧室非常的多,一层有4间卧室,二层有7间卧室,可以用来出租和自住。


这10款二层农村自建房图纸有没有适合你家宅基地的,喜欢哪款,欢迎留言。
扫码了解更多建房行业资讯

