好房子别错过!3款现代风别墅开启家族荣光
建筑大师贝聿铭说:建筑具有时间的耐久性,它不像服装,买了不好看可以抛弃。建筑不可如此,建成后它就会屹立在那里,无法避免世人的评头论足。品味不俗的建筑可以改善家庭居住环境、提升家族形象、光耀门楣。
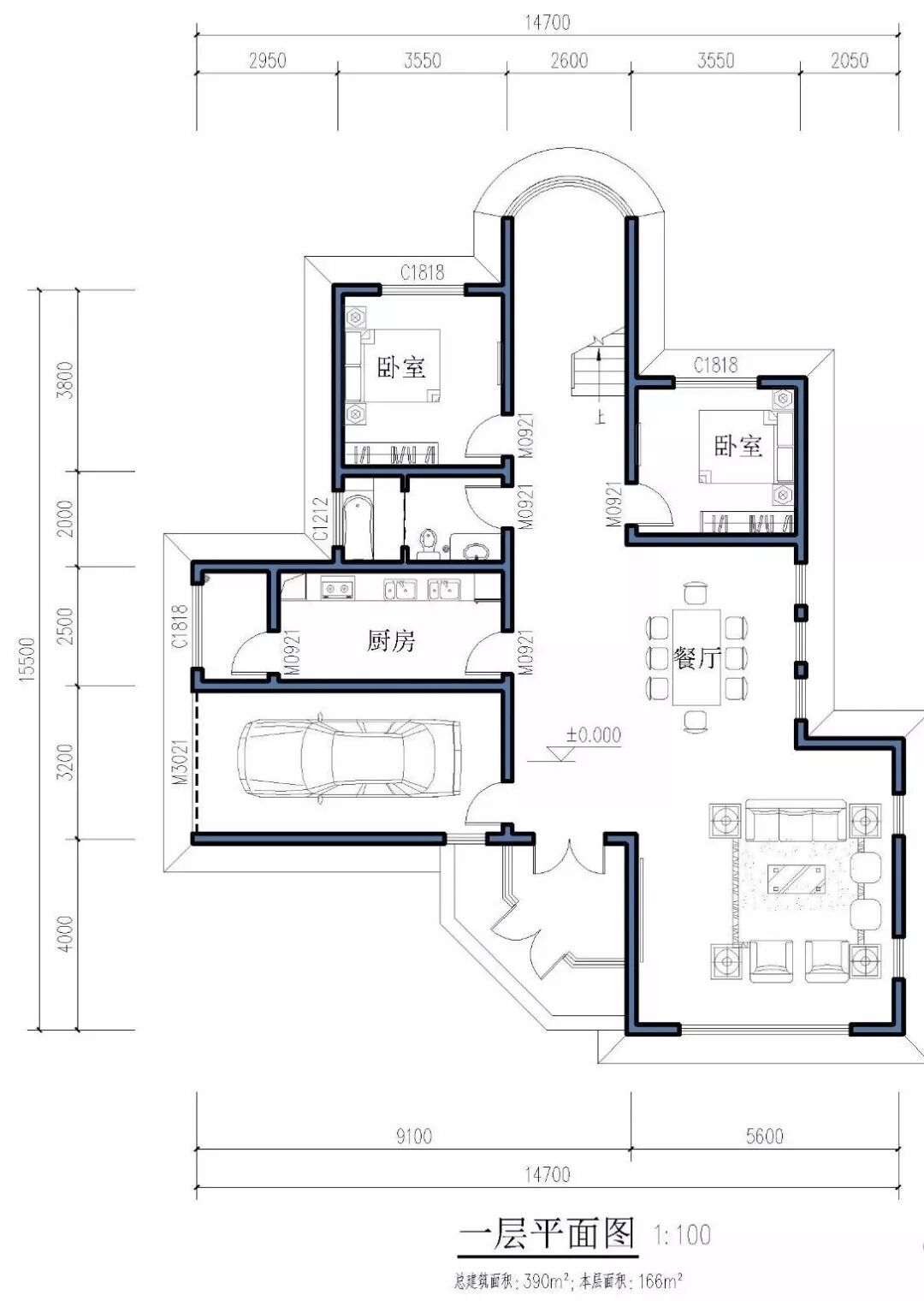
01
三层现代别墅


占地尺寸:14.7mX15.5m
占地面积:166㎡
建筑面积:390㎡
建筑高度:10.8m
建筑概况:8室4厅5卫1厨1车库



这是一幢3层现代别墅,宽敞明亮、气势不凡,各层相对独立而又密切联系。建筑造型大方气派、错落有致,暖色砖饰、白色外墙漆、青瓦屋面三色搭配庄重而典雅不俗,是我们力荐的豪宅之一。
02
四层现代别墅


占地尺寸:13.9mX12.3m
占地面积:150㎡
建筑面积:535㎡
建筑高度:14.0m
建筑概况:6室5厅5卫1厨1书房




这幢别墅外观稳重大方,颇具草原式建筑风格。大门大窗,采光通风良好,现代感很强,适合四代同堂,共享天伦之乐,开启家族荣光。
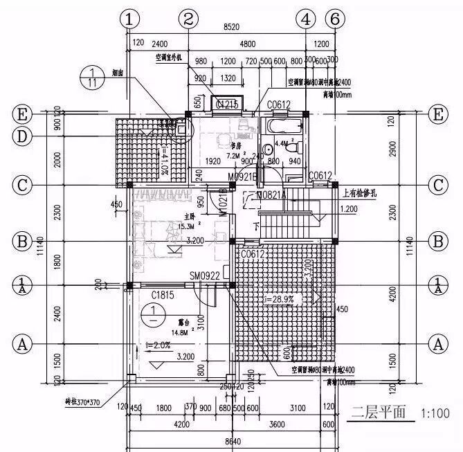
03
二层现代别墅


占地尺寸:8.64mX11.14m
占地面积:96㎡
建筑面积:140㎡
建筑高度:7.8m
建筑概况:3室2厅2卫1厨


这是一幢小面积的二层别墅,房间功能简单,布局简洁大方,这样的小型别墅非常适合常年在城市工作,而老家又与城市相距不远的人建造,用来周末度假休闲居住再合适不过了。
点我咨询留下您的需求,我会第一时间回复您!
点我咨询

