挑栋别墅回老家建!5款农村别墅精美豪华,长辈都说有眼光
占地尺寸:16.8米×10.5米
占地面积:161平方米
建筑面积:313平方米
层数:2层


占地尺寸:14.1米×9.3米
占地面积:131平方米
建筑面积:320平方米
层数:三层



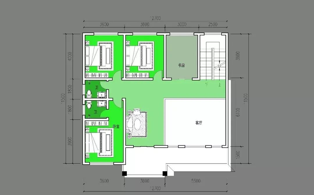
占地尺寸:12.7米×11.5米
占地面积:146平方米
建筑面积:400平方米
层数:3层



占地尺寸:11.1米×11.4米
占地面积:121平方米
建筑面积:220平方米
层数:2层


占地尺寸:13.2X8米
占地面积:109.24平方米
建筑面积:213.56平方米
结构类型:框架结构



