电视墙用鱼骨拼,卫生间全贴爵士白瓷砖,第一次见这么上档次的北欧风!

莫兰迪配色+精致的五金件+今年流行的工艺手法将这个96㎡的小三居装出宁静雅致,细节的设计彰显出高档的精致感,符合业主对生活品质的高要求标准。
房屋信息
面积:96㎡
户型:三居室
风格:北欧


▲原始户型图

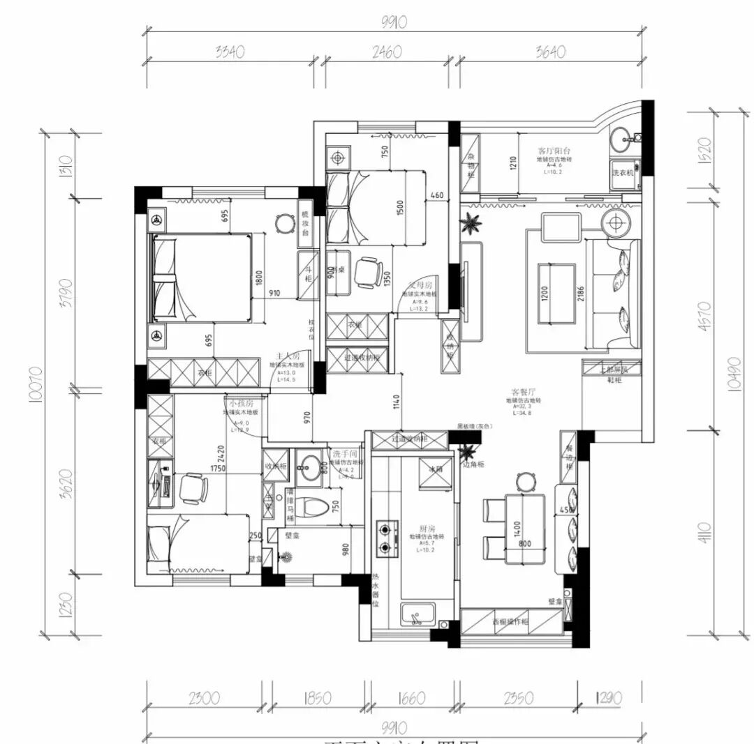
▲平面布局图


▲灰色墙面加一束灯光,让回家的你顿时心生暖感;鞋柜鞋柜、换鞋凳、挂衣钩满足进入家门一切动作的需求。

▲入门见厅的户型被玄关鞋柜隔断隔开,即保护了室内隐私也没有影响玄关的采光。


▲客厅墙地面搭配以时尚灰色,通过地毯、抱枕、单人沙发椅子等家具软装点缀温馨的色调,营造活力感。

▲莫兰迪色系搭配打造柔和宁静、舒缓雅致的美感,别具气质。

▲地板上墙,流行的“鱼骨拼”打造时尚的电视墙造型,搭配桃木电视柜+琴叶榕植物,宁静有格调,简洁中多出几分生机感。

▲客厅没有吊顶,简单的白色石膏线衔接墙面与天花,搭配灰色的质地,整体简洁大气。


▲餐厅采光很棒,原本的小阳台被纳入餐厅空间改造成水吧,方便平时煮茶冲咖啡洗杯子,下柜的收纳设计也分单了部分厨房的压力。

▲实木餐桌搭配不同造型和颜色的餐椅设计,不对称格局呈现设计的灵活和趣味性。

▲再加上一两件金边装饰品,可见日常生活的精致感。


▲浅色系厨房整洁与实用并存。


▲柜门造型颜色及灰色台面的搭配出经典,金色五金配件体现细节之处的精致格局。



▲过道以内嵌柜展示,白色柜门+原木色镂空整齐有序,无形中增加了室内的收纳量,让家里多出一个小书柜。



▲父母房衣柜内嵌,容量足够,整体色调简单淡雅,符合长辈的生活习惯。

▲家具红橡的纹理质感让人倍感温馨,自然宁静里呈现生活的美好。


▲主卧以复古色软装搭配实木家具,承重内敛,古典有质感。

▲浅灰色设计与墙面融为一体,回字形柜门+金属色门把,立体细节设计呈现时尚高级感。

▲床尾斗柜便于收纳小物件,收纳型的梳妆台,简洁实用。


▲小孩房以灵巧的软装提升空间活跃度,符合小男孩日常调皮的生活节奏。



▲仿爵士白瓷砖铺贴卫生间,自然的纹理不需要刻意挑选,随意的混铺更加能体现自然的延伸。


▲阳台洗衣机+烘干机叠放,在不规则角落定制了洗手台,居家过日子最能感受到阳台上有个洗手盆的好处。

▲另一侧安装组合收纳柜整体日常杂物,或者是清扫工具,墙面文艺卡通贴花让人眼前一亮。

