璀璨的大理石奢宅, 黑与红的经典搭配

星光熠熠,致敬永恒
漫步走过,百年风华,带不走的是永恒经典。
空间里有一场很长的梦,就像跟着灯光掉进金色年华,直到破晓时刻,梦境被晨光散开,久违的华彩,可倾城。 绛红色的点缀 背景,庄重典雅中不失时趣,有层次的细节处理,温暖了每位“回家人”的心。
黑白为庐,繁华为枕
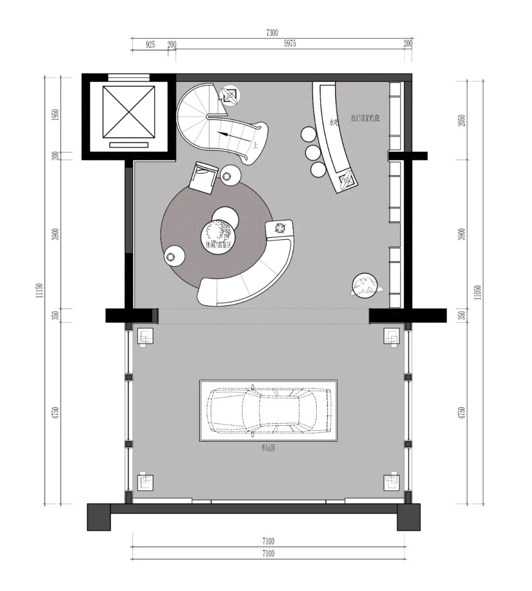
车水马龙从沉寂中苏醒,黑白色经典,与红绿一同绵长蔓延,环绕于富丽的金光下。设计师打造一种奢华的居家风情,艺术与舒适兼得,给美好生活一个轻柔依托。
从旭日红璨到斑驳零光,在大理石背景反射下,由眼入心,由心入梦。闪色与暖色柔和出家的气氛,当眼睛不被分心,此时无声胜有声,爱在细微末节中变成永恒的片段。
奏起序列 生活以上
以黑白红的经典配色为养分,不断释放能量。正式的排列中又带些不羁,时而张扬于外,最终内敛于心,在冷调中出类拔萃。
溪面舞风 水墨画中
卧室给人的感觉,古典中又带有现代。贯穿于墨色之中,将离人骚客的古韵文气息展现得淋漓尽致。舒心在简繁之中,自成一方天地。
心中有一种心驰神往,它超然于精湛之表,它是独树一帜的风格宣言。是自由与叛逆的化身,为变幻莫测的女性而生。打造素雅高贵的梦境,是独特的浪漫柔美。再挑剔的女士,也会在其中收获心跳。
经典对香,在每个角落,点燃爱意芬芳,不负邂逅。


上一篇:重构古典与现代的写意美学!
下一篇:大理石+高级灰,气质独特!