石材的简欧风,豪宅标配!
PartⅠ
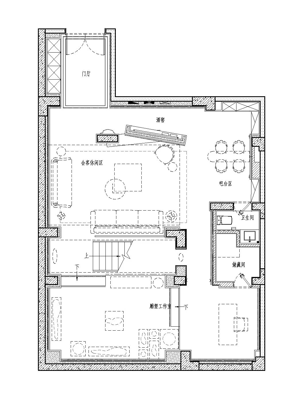
别墅的地下空间结合顶层人士向往尊贵舒适的生活方式,融入现代的奢华和欧式的浪漫。


地下空间营造双动线的回廊效果,一步一景,俨如艺术殿堂。

右侧下沉式雕塑工作室宽敞方正,数个主题雕塑叠放成空间一景,与那方便主人得心应手的书案一同彰显着空间“艺术”之本质。

空间中的家具,在点睛之处举重若轻,以自身诠释着迷人优雅的气度。


而拱券形的天花装饰结构取材于欧洲教堂的建筑元素,浪漫梦幻。

改用拉丝双层玻璃,设计师使夹层中的阅读区融入整体的地下空间,增强了两者之间的相互交流。

夹层投下的灰空间中,设计师顺势开辟了吧台区。再上下两层搭配以精致的柜体,巩固地下空间非凡的气度。
沿楼梯拾级而上,便可经过夹层的阅读区通达首层。


PartⅡ
首层的客厅与餐厅合力打造开间方正宽敞的大横厅。



天花与墙壁精雕细琢,莹白的圆弧细节,结合经典家具,整体空间得以如欧泊石一般,呈现出多变的色彩维度。


餐厅的设计除了尊重整体基调的设定以外,还在餐桌、餐椅到灯饰上精挑细选。



暗绿色绒面和石材的桌面均透露出一股自持的美丽,黄铜提升整个空间的个性,让餐厅也成为空间的点睛之处。
PartⅢ
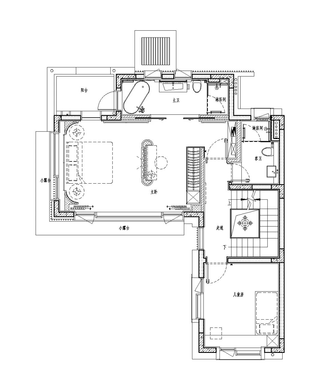
主卧继续凸显着简欧风格的传统历史痕迹和文化风情。双开的门窗使光线充足,主卧也因此充满了轻盈的通透感,尽显美妙的景观优势。

书桌和电视墙结合,巧妙且不露痕迹地划分了卧室和主卧之间的界限。

平面上两进的空间布局,加上尽量简洁的隔断,使得主卧显得宽敞利落且亲近。
主卫的雕花边框,营造优雅高贵的复古氛围。





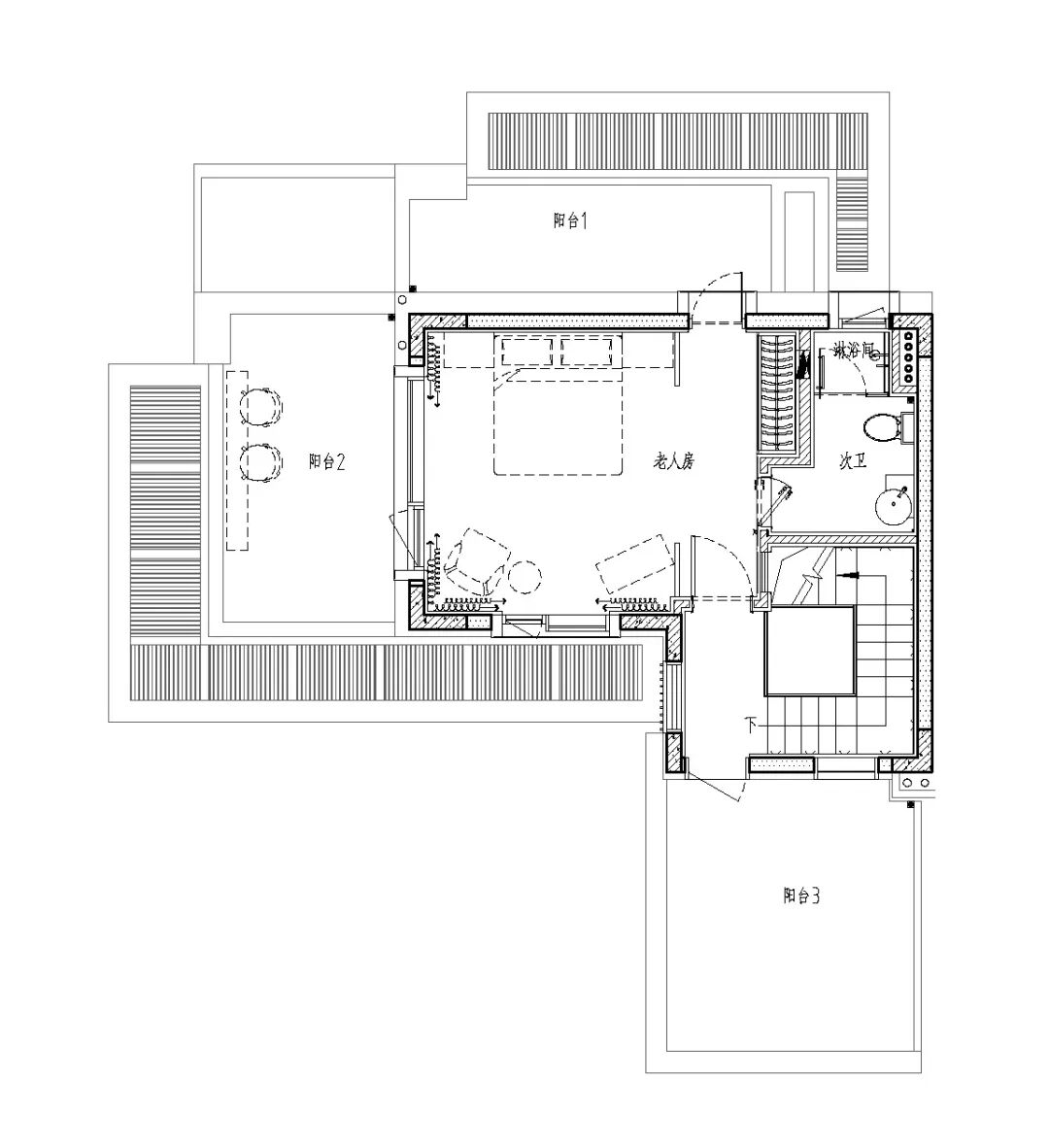
延续同样的思路,设计师继续为其他卧室空间赋予了人文历史的美学情怀。


用现代手法演绎古典时尚风情,可以尽可能弥补尺度相对较小的别墅空间天然的缺点。围绕层层递进的设计思路,欧泊石别墅内部注重对称和谐,多采用圆/方相互结合的造型,同时在材料和细节上精雕细琢,体现一种来自于古典文化的贵气和沉淀。

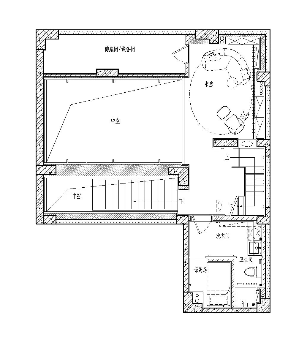
平面图
△负层平面图

