黑白灰,设计师的又一剂春药!
黑白灰,
作为打造简约家居的经典配色,
带有着与生俱来的艺术范,
它们没有绚丽多彩的颜色,
却总能令人耳目一新,
看一眼便爱上。
城市岛

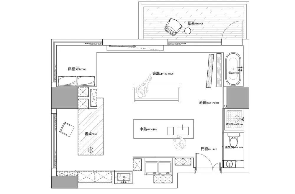
本案为高层住宅公寓。原始户型为两室的结构,根据使用者的需求,我们对室内空间的结构重新做了整理排布。



铁板焊接制作的长度2.8米的中岛兼餐桌,背后做了两道移门作为工作间的使用。

空间内基本功能的布置设置在四周,由几道移门解决了储物、卫浴、洗烘的功能。







书桌处的移动门解决了储物和洗手的功能




平面布置图

空间局限

本案为高层住宅项目面对地产商交付后千篇一律的户型结构我们调整了空间区域的划分将原有的卧室空间纳为公共区域. 结合了西厨加餐厅的功能使客餐厅形成了L形的空间.




石材中岛和木制桌面板的咬合连接



大理石的中岛 嵌入了手机无线充电面板 电磁炉. 增加了岛台使用的便利性.中岛背部也做了抽屉柜体及烤箱的收纳处理.




平面布置图

空间的章法











简约的黑色它们美得并不张扬,骨子里却带有一种与生俱来的气场,在不经意间撩拨着所有人的眼球,将时尚高雅的姿态充分表达。
● ● ●

